Âmbito do Projeto:
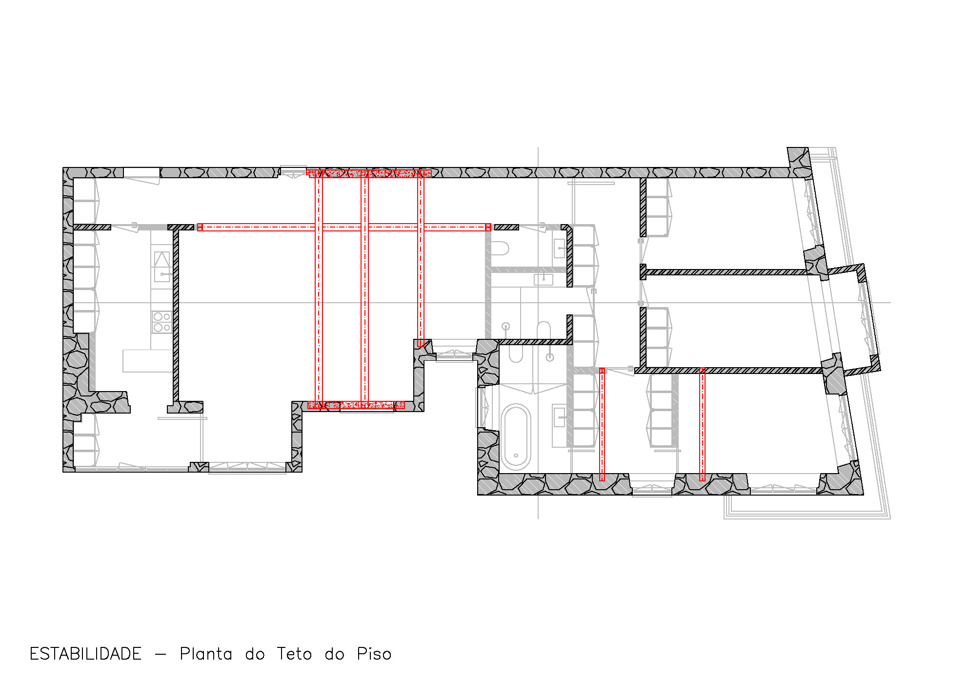
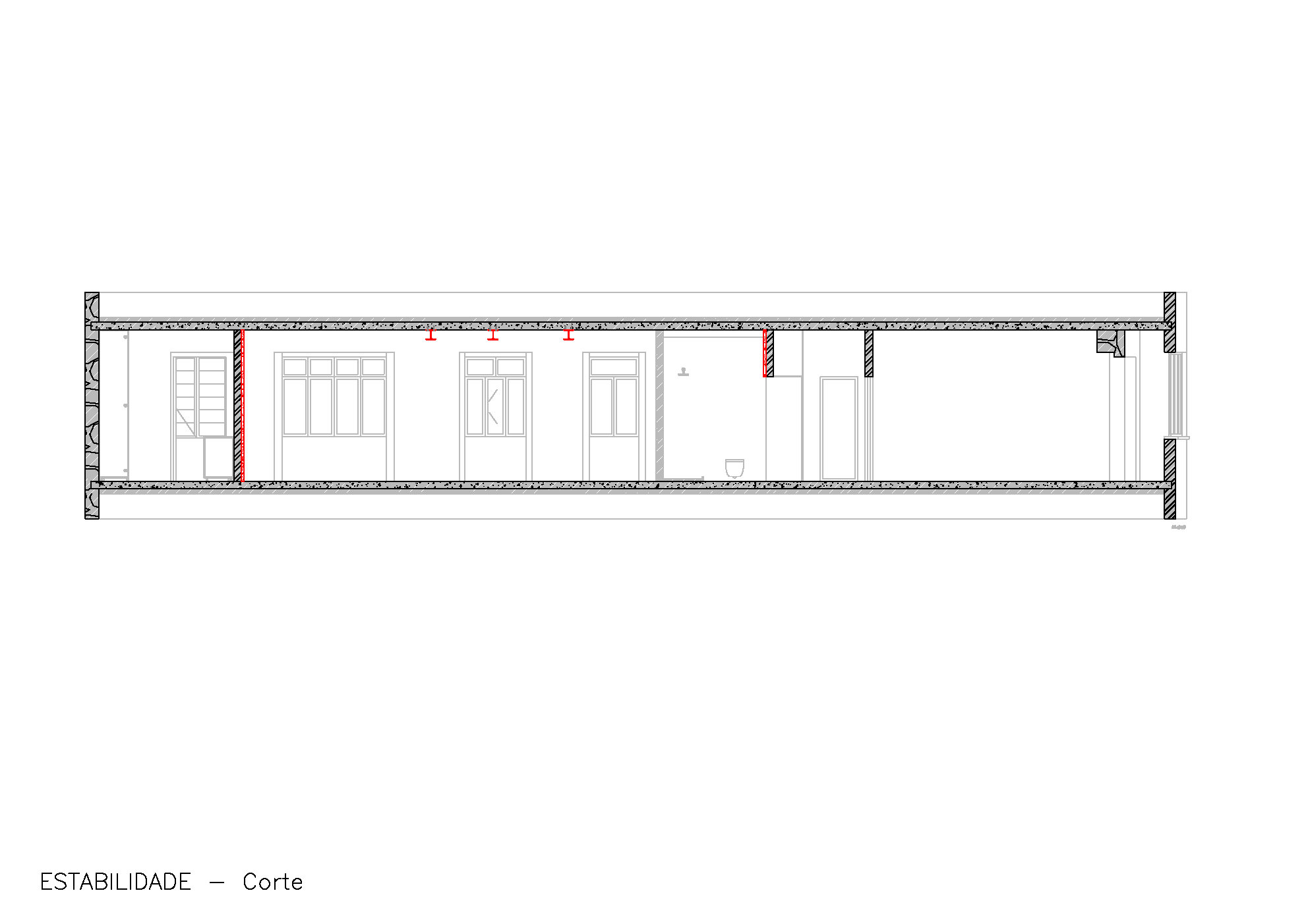
- Estabilidade
- Demolição
- Rede Predial de Abastecimento de Água
- Rede Predial de Drenagem de Águas Residuais Domésticas e Pluviais
- Rede de Distribuição de Gás Natural
- Instalações Elétricas
- Infraestruturas de Telecomunicações em Edifícios
- Ventilação e Exaustão de Fumos
- Climatização
- Verificação do Comportamento Térmico
- Verificação do Comportamento Acústico
- Segurança Contra Incêndio em Edificios
- Plano de Segurança e Saúde
Informações do Projeto:
- Obra: Alteração de um Apartamento
- Localização: Lisboa
- Área: 170m2
- Projeto: 2020
- Construção: Concluida
- Colaboradores: Romeu Oliveira, José Pinto-Coelho
- Arquitetura: PHDD Arquitectos
- Fotografia: PHDD Arquitectos
